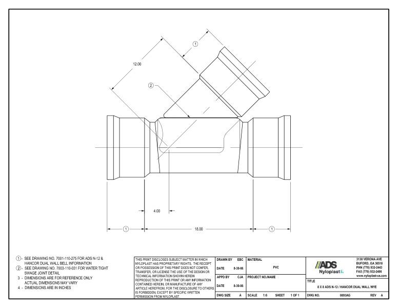
8 x 8 N-12 Dual Wall Wye Nyloplast Detail
Filename:
8 x 8 N-12 Dual Wall Wye Nyloplast Detail.dwg

This document is the 8 x 8 N-12 Dual Wall Wye Nyloplast Detail. Dimensions and nyloplast illustration shown.
A note on dimension 1 references Hancor Dual Wall Bell for more information. Note 2 refers to a drawing for water tight SWAGE joint detail. A note on dimension 3 states that dimensions are for reference only. Note 4 specifies that dimensions are in inches.
An illustration showing the dimensions is provided.