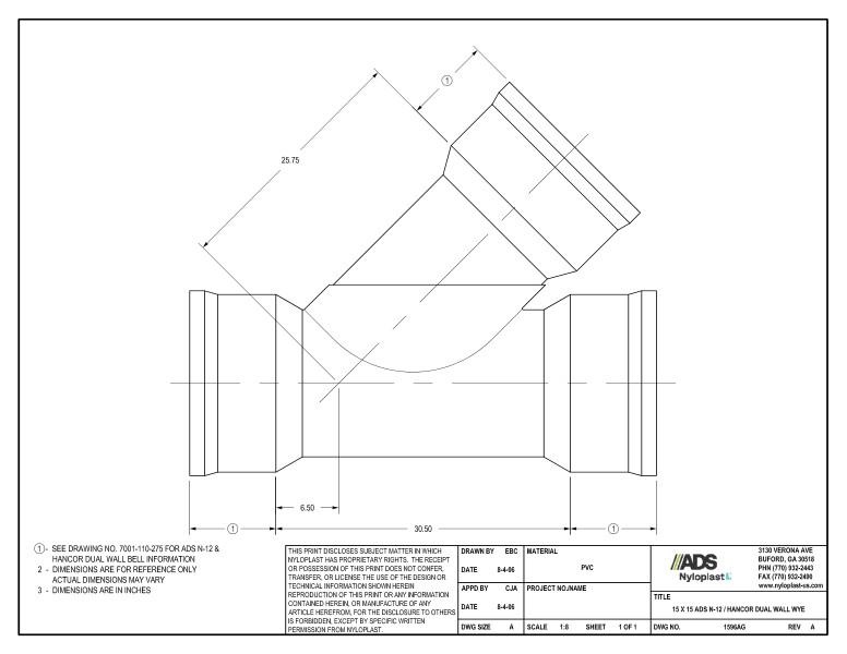
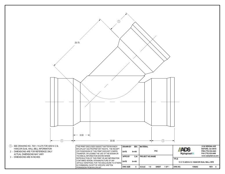
15 x 15 N-12 Dual Wall Wye Nyloplast Detail

Filename:
15 x 15 N-12 Dual Wall Wye Nyloplast Detail.pdf

15 x 15 N-12 Dual Wall Wye Nyloplast Detail

This document is the 15 x 15 N-12 Dual Wall Wye Nyloplast Detail. Dimensions and nyloplast illustration shown.

A note on dimension 1 references Hancor Dual Wall Bell for more information. A note on dimension 2 states that dimensions are for reference only. Note 3 specifies that dimensions are in inches.

An illustration showing the dimensions is provided.

Looking for something else?

View Document Library