15" Unsanded Manhole Adapter - HP Bell x SWR Spigot Nyloplast Detail

Filename:
15" Unsanded Manhole Adapter - HP Bell x SWR Spigot Nyloplast Detail.dwg

15" Unsanded Manhole Adapter - HP Bell x SWR Spigot Nyloplast Detail

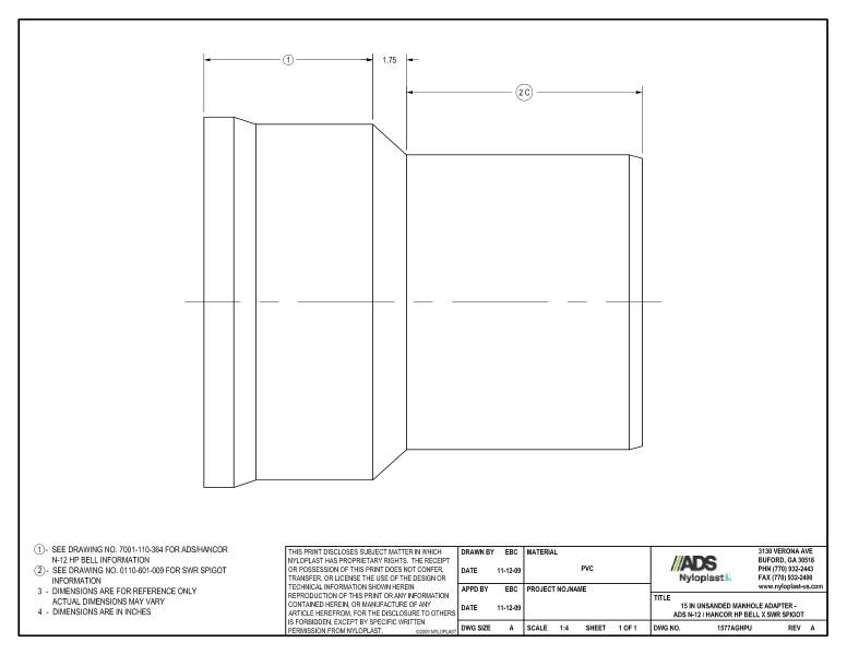
This document is the 15” Unsanded Manhole Adapter – HP Bell x SWR Spigot Nyloplast Detail. Dimensions and nyloplast illustration shown.

A note on dimension 1 references ADS/Hancor N-12 HP Bell for more information. A note on dimension 2 references drawing for SWR spigot information. Note 3 states that dimensions are for reference only. Note 4 specifies that dimensions are in inches.

An illustration showing the dimensions is provided.

Looking for something else?

View Document Library