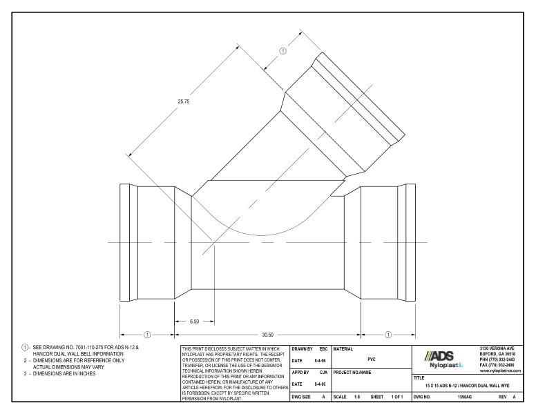
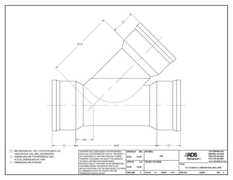
15 x 15 N-12 Dual Wall Wye Nyloplast Detail
Filename:
15 x 15 N-12 Dual Wall Wye Nyloplast Detail.dwg

This document is the 15 x 15 N-12 Dual Wall Wye Nyloplast Detail. Dimensions and nyloplast illustration shown.
A note on dimension 1 references Hancor Dual Wall Bell for more information. A note on dimension 2 states that dimensions are for reference only. Note 3 specifies that dimensions are in inches.
An illustration showing the dimensions is provided.