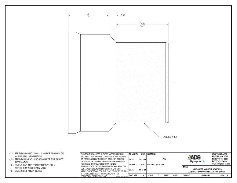
18" Sanded Manhole Adapter - HP Bell x SWR Spigot Nyloplast Detail
Filename:
18" Sanded Manhole Adapter - HP Bell x SWR Spigot Nyloplast Detail.dwg

This document is the 18” Sanded Manhole Adapter – HP Bell x SWR Spigot Nyloplast Detail. Dimensions and nyloplast illustration shown.
A note on dimension 1 references ADS/Hancor N-12 HP Bell for more information. A note on dimension 2 references drawing for SWR spigot information. Note 3 states that dimensions are for reference only. Note 4 specifies that dimensions are in inches.
An illustration showing the dimensions and sanded area is provided.