2' x 2' Curb Inlet Diagonal Grate Assembly Nyloplast Detail
Filename:
 2' x 2' Curb Inlet Diagonal Grate Assembly Nyloplast Detail.pdf
 
						
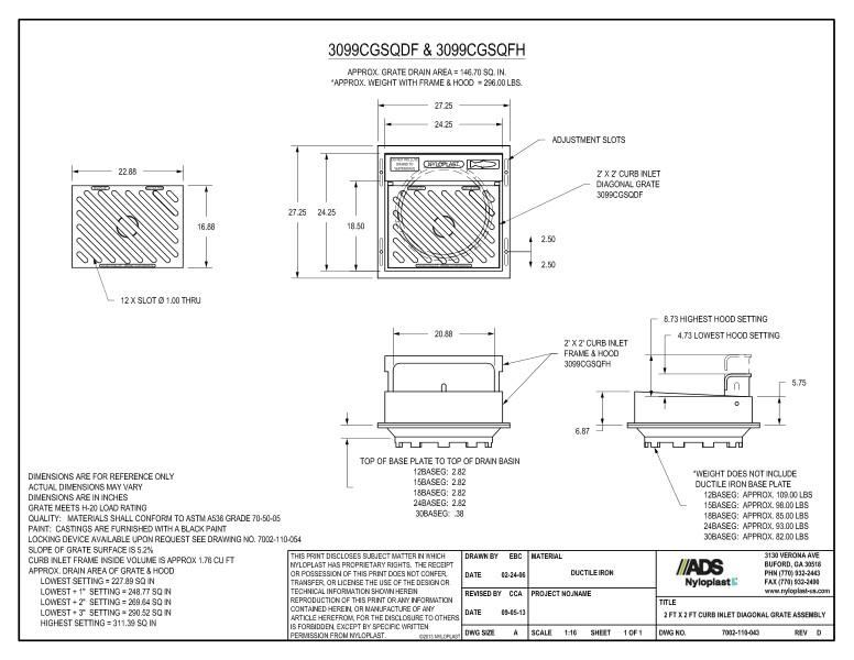
					This document is the 2' x 2' Curb Inlet Diagonal Grate Assembly Nyloplast Detail. Illustrations show the various components with descriptions.
One illustration shows the 2' x 2' Curb Inlet diagonal grate with adjustment slots. Another illustration shows the 2' x 2' Curb Inlet frame & hood with top of base plate to top of drain basin. A third illustration shows the highest and lowest hood settings.
Notes mention that dimensions are for reference only and in inches. Grate meets H-20 load rating. Materials shall conform to ASTM A536, grade 70-50-05. Castings are furnished with black paint. Locking device available upon request. Slope of grate surface is 5.2%. Curb inlet frame inside volume is approximately 1.76 cubic feet and the approximate drain area of grate & hood. Various highest and lowest hood settings are included.
