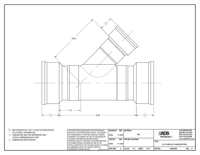
18 x 12 HP Wye Nyloplast Detail
Filename:
18 x 12 HP Wye Nyloplast Detail.dwg

This document is the 18 x 12 HP Wye Nyloplast Detail. Dimensions and nyloplast illustration shown.
A note on dimension 1 references ADS/Hancor N-12 HP Bell for more information. Note 2 states that dimensions are for reference only. Note 3 specifies that dimensions are in inches.
An illustration showing the dimensions is provided