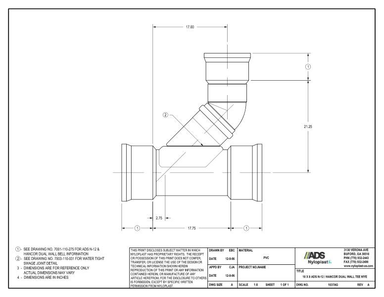
10 x 8 N-12Dual Wall Tee Wye Nyloplast Detail

Filename:
10 x 8 N-12Dual Wall Tee Wye Nyloplast Detail.dwg

10 x 8 N-12Dual Wall Tee Wye Nyloplast Detail

This document is the 10 x 8 N-12 Dual Wall Tee Wye Nyloplast Detail. Dimensions and nyloplast illustration shown.

A note on dimension 1 references Hancor Dual Wall Bell for more information. Note 2 refers to a drawing for water tight SWAGE joint detail. A note on dimension 3 states that dimensions are for reference only. Note 4 specifies that dimensions are in inches.

An illustration showing the dimensions is provided.

Looking for something else?

View Document Library