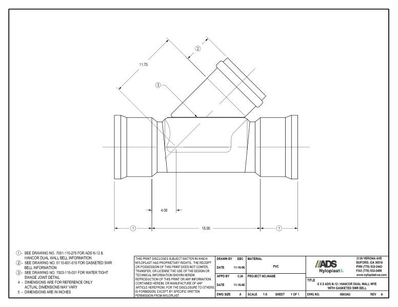
8 x 8 N-12 Dual Wall Wye with Gasketed SWR Bell Nyloplast Detail

Filename:
8 x 8 N-12 Dual Wall Wye with Gasketed SWR Bell Nyloplast Detail.dwg

8 x 8 N-12 Dual Wall Wye with Gasketed SWR Bell Nyloplast Detail

This document is the 8 x 8 N-12 Dual Wall Wye with Gasketed SWR Bell Nyloplast Detail. Dimensions and nyloplast illustration shown.

A note on dimension 1 references Hancor Dual Wall Bell for more information. A note on dimension 2 references Gasketed SWR Bell for more information. Note 3 directs to see drawing for water tight SWAGE joint detail. Note 4 states that dimensions are for reference only. Note 5 specifies that dimensions are in inches.

An illustration showing the dimensions is provided.

Looking for something else?

View Document Library