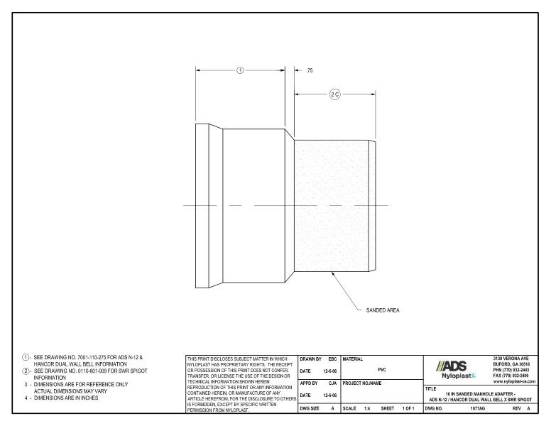
10" Sanded Manhole Adapter - N-12 Dual Wall Bell x SWR Spigot Nyloplast Detail
Filename:
10" Sanded Manhole Adapter - N-12 Dual Wall Bell x SWR Spigot Nyloplast Detail.pdf

This document is the 10” Sanded Manhole Adapter - N-12 Dual Wall Bell x SWR Spigot Nyloplast Detail. Dimensions and nyloplast illustration shown.
A note on dimension 1 references Hancor Dual Wall Bell for more information. A note on dimension 2 references a drawing for SWR spigot information. Note 3 states that dimensions are for reference only. Note 4 specifies that dimensions are in inches.
An illustration showing the dimensions is provided.