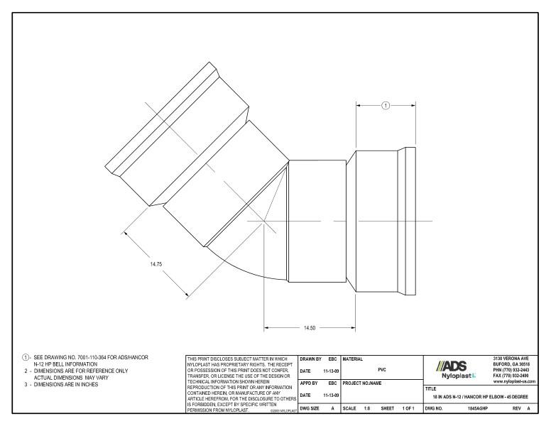
18" HP Elbow - 45 Degree Nyloplast Detail
Filename:
18" HP Elbow - 45 Degree Nyloplast Detail.pdf

This document is the 18” HP Elbow – 45 Degree Nyloplast Detail. Dimensions and nyloplast illustration shown.
A note on dimension 1 references ADS/Hancor N-12 HP Bell for more information. Note 2 states that dimensions are for reference only. Note 3 specifies that dimensions are in inches.
An illustration showing the dimensions is provided.