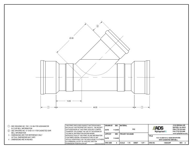
15 x 15 HP Wye with Gasketed SWR Bell Nyloplast Detail
Filename:
15 x 15 HP Wye with Gasketed SWR Bell Nyloplast Detail.pdf

This document is the 15 x 15 HP Wye with Gasketed SWR Bell Nyloplast Detail. Dimensions and nyloplast illustration shown.
A note on dimension 1 references ADS/Hancor N-12 Bell for more information. A note on dimension 2 references Gasketed SWR Bell for more information. Note 3 states that dimensions are for reference only. Note 4 specifies that dimensions are in inches.
An illustration showing the dimensions is provided.