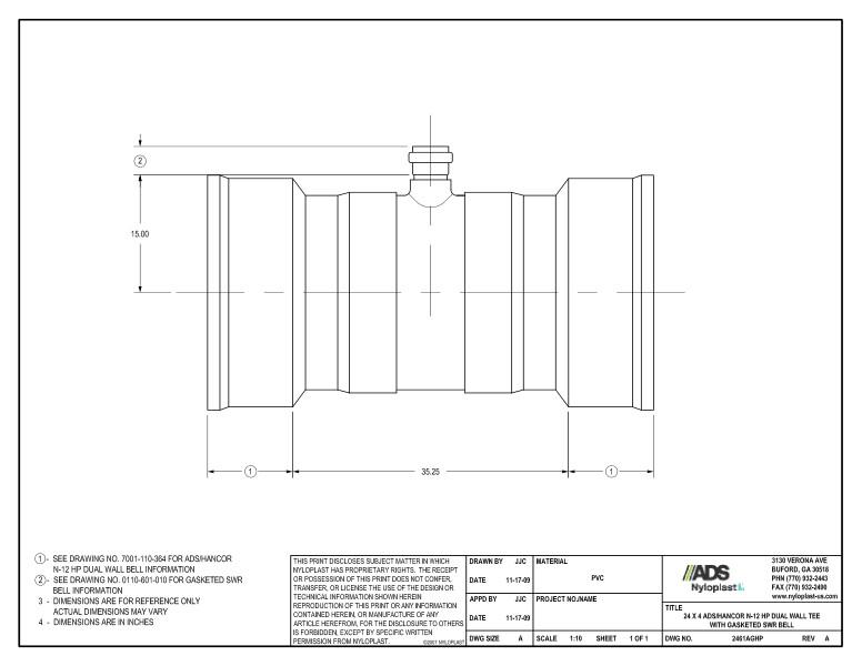
24 x 4 HP Tee with Gasketed SWR Bell Nyloplast Detail

Filename:
24 x 4 HP Tee with Gasketed SWR Bell Nyloplast Detail.dwg

24 x 4 HP Tee with Gasketed SWR Bell Nyloplast Detail

This document is the 24 x 4 HP Tee with Gasketed SWR Bell Nyloplast Detail. Dimensions and nyloplast illustration shown.

A note on dimension 1 references ADS/Hancor N-12 Bell for more information. A note on dimension 2 references Gasketed SWR Bell for more information. Note 3 states that dimensions are for reference only. Note 4 specifies that dimensions are in inches.

An illustration showing the dimensions is provided.

Looking for something else?

View Document Library