12" Universal Inline Drain for N-12

Filename:
12" Universal Inline Drain for N-12.pdf

12" Universal Inline Drain for N-12

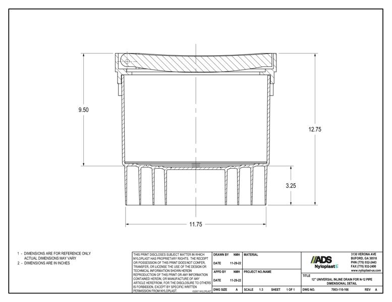
This document is the 12" Universal InLine Drain For N-12 Dimensional Detail. Inline drain detail provided.

The inline drain detail shows the dimensions on each side of the unit. Dimensions are in inches and for reference only.

Looking for something else?

View Document Library