Drain Basin Anti-Flotation Installation Nyloplast Detail
Filename:
Drain Basin Anti-Flotation Installation Nyloplast Detail.pdf

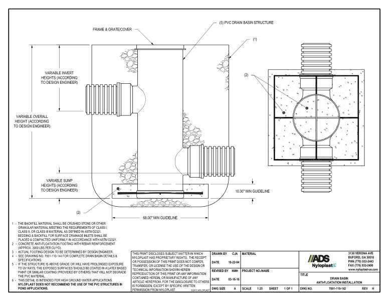
This document is the Drain Basin Anti-Flotation Installation Nyloplast Detail. Illustrations with notes and description shown.
The detail shows the side view of the PVC drain basin structure with frame & grate/cover, variable invert and overall heights, variable sump heights and guidelines. A top view of the structure is included.
Note 1 states that the backfill material shall be crushed stone or other granular material. Note 2 shows where the concrete anti-flotation footing with rebar reinforcements is located. Note 3 says that actual footing design to be determined by engineer. Note 4 recommends drawing #7001-110-144 for complete drain basin details and specs. Note 5 explains that if the structure is above grade or will have prolonged exposure to UV rays, the exposed surfaces should be coated in a latex based pain or similar that will not degrade PVC material. Note 6 states that this detail is intended for high ground water applications.