12" Standard Grate Assembly Nyloplast Detail

Filename:
12" Standard Grate Assembly Nyloplast Detail.dwg

12" Standard Grate Assembly Nyloplast Detail

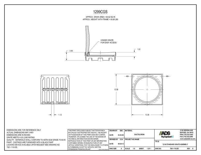
This document is the 12" Standard Grate Assembly Nyloplast Detail. It shows the nyloplast grate with dimensions.

The illustrations show the nyloplast 12” solid cover with dimensions with approximate drain area of 60.62 SQ inches and approximate weight of 40.68 LBS. A top and side view is shown with hinged cover for easy access.

Notes detail that dimensions are for reference only and in inches. Grate meets H-20 load rating. Materials shall conform per ASTM A536 grade 70-50-05. Castings are furnished with a black paint. The locking device is available upon request.

Looking for something else?

View Document Library